New schoolrooms for Dotzigen

06.07.2020

Today, the demolition work of the old special room wing begins. On August 7, the groundbreaking ceremony for the new building of the special rooms in timber construction will take place. A lot of spruce and beech wood from Switzerland is used for the construction.

New schoolrooms for Dotzigen

The classrooms of the Dotzigen Upper School in the canton of Bern have reached the limits of their capacity. In order to accommodate the pupils of the municipalities of of Büetigen-Diessbach-Dotzigen the best possible conditions for teaching in the future. the electorate granted a building loan of 4.1 million Swiss francs in 2019. francs.

Construction work
First,the pollutants built in the 1970s must be carefully years must be carefully disposed of. Then the existing special room wing will be demolished and replaced with a modern wooden building.

Facade school Dotzigen

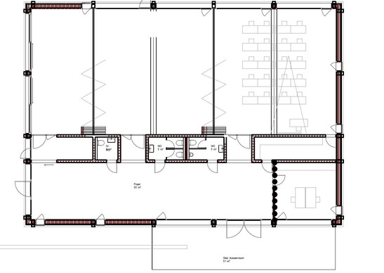
The Leimer Tschanz Architekten AG from Biel planned the 25-meter-long and 18-meter-wide structure. They defined a staircase made of reinforced concrete for access to the upper floors and for bracing the of the building. The staircase was not located in the center of the building, thus enabling spacious rooms. On the first floor, thanks to folding walls that can be opened or that can be opened or closed as needed, a music room is created for up to 100 people. When all folding walls are open, the room is 25 meters long and 10 meters wide. meters wide.

Floor plan school Dotzigen

Spanabletimber construction
The spans of 10 meters in length and the prescribed load capacity for school buildings of 3kN (300 kg per square meter) are a challenge for the challenge for timber construction. With today's technologies and building products they are easily solvable.

Cut carrier

A glued laminated timber beam made of Swiss beech wood beech wood spans the rooms. It transfers the loads from the upper floors to the outer walls. the outer walls. The beam has a dimension of 96x44cm. Thanks to clever construction and the suspended ceiling, only about 40 centimeters of the centimeters of the beam are visible.

Privacy notice
This website uses external components that can be used to collect data about your behavior. Read more about this in our privacy policy.