Riggisberg builds school building in sustainable timber element construction

10.05.2025

Riggisberg is building on education: New school space in timber construction is being built here: A three-storey modular building is being added to the Aebnit school complex. The building offers flexible learning spaces for modern forms of teaching - with expansion reserves and a photovoltaic system. Timbatec planned the supporting structure and advised on the design and building physics.

New Aebnit school building: timber element construction for the future of learning

Situationsskizze Schulareal Zentrumsgemeinde Riggisberg

Project sketch: Freiluft Architekten BSA SWB SIA, Schwarzenburg | Alexander Grünig


The municipality of Riggisberg is planning and building with foresight: an increase in pupil numbers is expected in the coming years. The reasons for this include the brisk construction activity in the region and Riggisberg's role as a regional center. At the same time, modern teaching methods require more flexible room solutions. In order to meet these requirements, the school infrastructure is being expanded in stages.


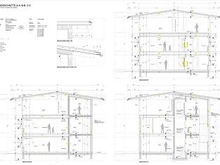
Three-storey timber element construction is erected - basis laid for flexible expansion options

The Aebnit school complex is currently being extended with a new building as the first stage. The building is a three-storey timber construction that was erected in April 2025. The ground floor, first floor and second floor have already been constructed to accommodate future school facilities. The third floor, which has already been constructed as a reserve in the uninsulated shell but is not yet occupied, has also been planned with particular foresight. The third floor unit has been integrated into the timber construction and can be quickly converted into additional classrooms and put into operation if required - all that is needed is to open prepared window cut-outs, insert windows and insulate the walls. The elevator and staircase have already been completed up to the top floor.

There will be space for two classrooms on the first floor and two on the second floor. The building is designed to be extremely flexible, allowing for a variety of room layouts and modifications and adaptations as required. The roof will be fitted with a photovoltaic system, thus also contributing to the municipality's sustainable energy supply.


Further stages in planning

The new building is designed to provide space for pupils for a period of 30 years. There are already two other school buildings on the site, which have been in operation for 87 and 32 years respectively. They are also part of the long-term school space strategy. The school building, which is classified as worthy of preservation in the building inventory, is to be renovated and converted, followed in a third step by the conversion and renovation of the secondary school building.

© Plan excerpts: Open air Architects BSA SWB SIA, Schwarzenburg | Alexander Grünig


Project participants

Area of responsibilityCarrier
ClientGemeinde Riggisberg, 3132 Riggisberg
ArchitectureFreiluft Architekten BSA SWB SIA, 3150 Schwarzenburg
Timber constructionRemund Holzbau AG, 3150 Schwarzenburg
Timber engineering, statics, construction and building physicsTimbatec Holzbauingenieure Schweiz AG, in the SIA phases 32 to 52

With the new Aebnit school building, Riggisberg is taking an important step towards a sustainable educational infrastructure - 

#ecological, #flexible and #foresighted #planning.

Privacy notice
This website uses external components that can be used to collect data about your behavior. Read more about this in our privacy policy.