


The project
The superstructure in Wädenswil with 34 residential units was built in reinforced concrete. The facade was realized in wood with a vertical formwork, pressure impregnated and is painted. The facade surfaces are on different levels. Horizontally, apron bands are placed every half floor, going around the complete building. The integration of these aprons into the window sill and parapet finishes, with partial differences in height and depth, results in complex geometries that had to be designed. Due to the vertical formwork, the substructure had to be created horizontally. In order to avoid a double substructure for the rear ventilation, the substructure was formed with staggered battens so that the rear ventilation is still guaranteed.
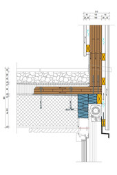
The construction
A cross grid is applied to the exterior wall. Here, the first batten must be braced to accommodate the tolerances of the solid construction. To reduce thermal bridges, the second grating, instead of being horizontal, is now vertical. The wind paper protects the insulation from cooling due to the influence of the wind. The rear ventilation lathing and the facade formwork are mounted above it.
The challenge
The attachment of the parapets, which could not be fixed to the concrete, had to be bridged and tied back with a thick three-layer board. For the facade, the exact formations of the skirts, with the geometrically demanding sheet metal parts, are a challenge.
Construction Data
- Facade cladding approx. 4'500 m2
Construction costs
- BKP 214: 1,968,306.Swiss francs
Services of Timbatec
- SIA Phase 41 Call for tenders and comparison of offers
- SIA Phase 51 Implementation project
- Facade planning
Architect
Noldin Immobilien AG 8004 Zurich
Client
Noldin Immobilien AG 8004 Zurich
Timberconstruction engineer
Timbatec Holzbauingenieure Schweiz AG 8005 Zurich
Timberconstruction
Kälin Holz Technik AG 8840 Trachslau
Civil engineer
Urech Bärtschi Maurer AG 8037 Zurich
Building physics
FEAG Facility Engineering AG 8305 Dietlikon
Photography
© René. Dürr, 8046 Zurich